Design & Interior - Architecture | Apartment_Hobrecht_62 | Berlin

Kunde & Auftraggeber: Real Estate & Friends GmbH 

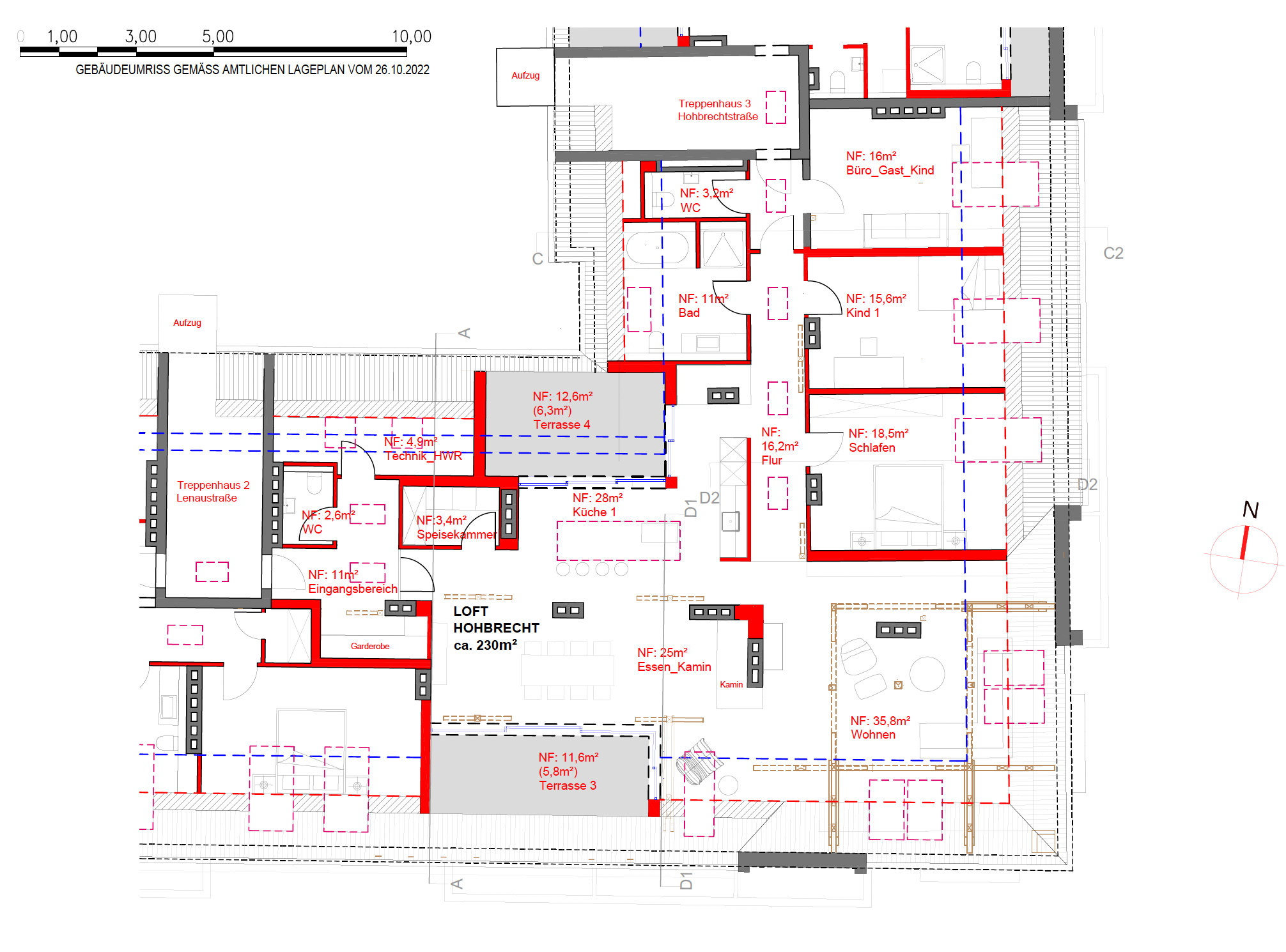
Projekt: Entwicklung, Entwurf und Vorplanung eines Loftapartments in Berlin

Unsere Aufgabe: Beratung, Entwurf, Planung

Zusammenarbeit: Innenarchitektin K. Soppe (HH)

Visuals: Ceada / Soppe

Zurück
Zurück

Living | Loft Hobrecht 62_Berlin_Studie

Weiter
Weiter

GastronomyDesign | GAO Viertnamese Food | Berlin