Design & Interior - Architecture | Loft_Hobrecht_62 | Berlin

Kunde & Auftraggeber: Real Estate & Friends GmbH 

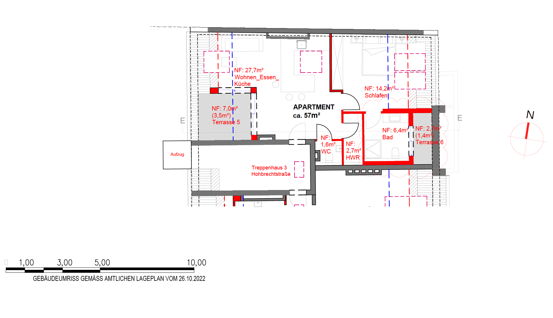
Projekt: Entwicklung, Entwurf und Vorplanung eines Loftapartments in Berlin

Unsere Aufgabe: Beratung, Entwurf, Planung

Zusammenarbeit: Innenarchitektin K. Soppe (HH)

Visuals: Ceada / Soppe

Zurück
Zurück

Interior-design | BE Sports | Fitnessboutique | Berlin

Weiter
Weiter

Living | Apartment_Hobrecht 62_Berlin_Studie